Categorías: Artículos destacados » Secretos de electricista
Cantidad de vistas: 70778
Comentarios sobre el artículo: 1
Sistema de CAD eléctrico de AutoCAD
Una vez, gracias a AutoCAD, los diseñadores pasaron de trabajar en computadoras a computadoras. Sin embargo, los proyectos modernos son tan complejos y sus plazos de producción son tan ajustados que AutoCAD ya no cumple con todos los requisitos de diseño moderno.
Actualmente, varios sistemas de diseño asistidos por computadora están desplazando activamente al "culman electrónico", ofreciendo agilizar la implementación del proyecto, automatizar el trabajo de rutina, monitorear el proceso de diseño y advertir sobre errores.
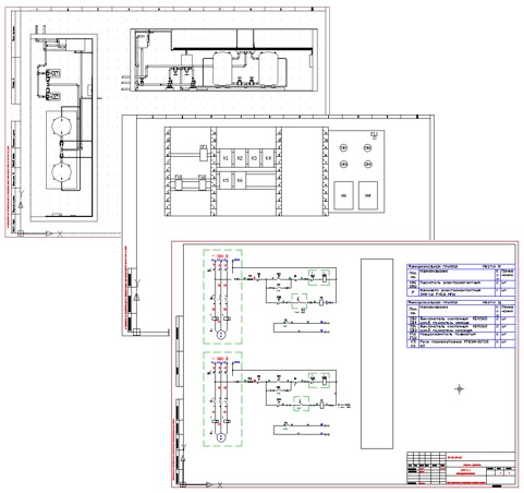
AutoCAD Electrical - este es un conocido AutoCAD para crear proyectos en el campo de la ingeniería eléctrica, automatización, sistemas de control de procesos, Instrumentación y otras areas.
El programa contiene un conjunto completo de funciones de AutoCAD, a las que se agregan herramientas especializadas que automatizan los procesos de creación de diagramas, dibujos de diseño, generación de informes, etc. Diseñar en AutoCAD Electrical puede mejorar la productividad y reducir los errores.
Si AutoCAD funciona con dibujos separados, objetos geométricos y bloques, entonces AutoCAD Electrical funciona:
-
Con todo el proyecto, incluido el proyecto, puede crear a partir de dibujos estándar y fragmentos típicos de esquemas.
-
Con componentes, como motores, relés, terminales, conectores, etc.
-
Alambres, cables y arneses
-
Controladores lógicos programables, etc.
La solución de tecnología de prototipo digital de Autodesk va más allá del modelado 3D habitual. Permite a los grupos de trabajo utilizar el mismo modelo digital en todas las etapas del proyecto, desde el diseño conceptual hasta el diseño, el diseño de elementos de control eléctrico y la producción.
Click en la imagen para ampliar
Un proyecto de AutoCAD Electrical puede contener:
-
Esquemas de automatización
-
Diagramas esquemáticos eléctricos
-
Diagramas de cableado
-
Dibujos de diseño
-
Planes de montaje
-
Varios informes y otros documentos.
El trabajo con proyectos y dibujos en AutoCAD Electrical está coordinado por el "Project Manager", que ofrece:
-
Medios flexibles para ajustar la visualización del contenido del proyecto.
-
Potente menú contextual
-
Herramientas para configurar el entorno del proyecto y las bibliotecas de componentes.
Cuando se trabaja en un proyecto, se utilizan bases de datos gráficos y de texto. El suministro de AutoCAD Electrical incluye más de 2,000 símbolos gráficos convencionales (UGO) de componentes de circuitos eléctricos de acuerdo con GOST, JIC, IEC, GB, JIS, AUS. Es posible crear imágenes gráficas personalizadas e incluirlas en una base de datos gráfica.
La biblioteca de componentes gráficos también incluye:
-
Diseños de productos
-
Componentes del circuito de automatización
-
Componentes neumáticos e hidráulicos.
La base de datos del catálogo de AutoCAD Electrical contiene más de 350 mil artículos de productos de los fabricantes más famosos, sus datos de catálogo e imágenes de diseño.
A un componente colocado en un diagrama de diseño o dibujo se le asigna automáticamente un designador de referencia único. Las líneas creadas en capas especiales se definen como cables o circuitos, a los que también se les asigna automáticamente un número único.
AutoCAD Electrical admite:
-
Formato flexible para designaciones de componentes y números de circuito de proyecto.
-
Numeración trifásica
-
Rastrea la notación duplicada.
AutoCAD Electrical define las imágenes gráficas de los componentes ubicados en diferentes hojas del proyecto, pero con el mismo designador de referencia, como un solo objeto. Una herramienta especial le permite encontrar automáticamente las partes componentes y moverse alrededor de ellas, realizando, por ejemplo, los cambios necesarios. Los cambios realizados en una parte del componente se transfieren a todas las demás partes.
Se admiten funciones especiales para trabajar con contactores / relés, que incluyen:
-
Formato de visualización flexible para referencias cruzadas: texto, gráfico o tabular, la capacidad de mostrar grupos de contactos no utilizados
-
Advertencia sobre exceder el número de grupos de contacto y contactos inadmisibles.
Para conectar cadenas en diferentes hojas del proyecto o en diferentes partes de la hoja, se utilizan enlaces cruzados de cadenas: enlaces de origen y enlaces de destino.
Además del número de cables del proyecto, puede asignar una marca, color, sección y otras características. Usando herramientas especiales, a los cables se les asignan las funciones de los núcleos de cable, a los que se les asigna la designación del cable y los datos del catálogo, números de núcleo, etc. AutoCAD Electrical controla el número permitido de núcleos para el tipo de cable seleccionado.
AutoCAD Electrical ofrece las siguientes herramientas para crear circuitos utilizando mazos de cables:
-
Una forma paramétrica de crear conectores.
-
Construyendo múltiples conductores en una operación
-
Numerosas funciones de pin conector
-
Enlaces - Splitters para arneses
Las siguientes funciones están disponibles para la creación de circuitos automatizados utilizando controladores lógicos programables (PLC):
-
La biblioteca de módulos PLC contiene más de 3 mil productos de los fabricantes más famosos.
-
Colocación paramétrica y designación de módulos de E / S de PLC en hojas de proyecto
-
Creación automática de dibujos de conexión de módulos de E / S PLC basados en datos tabulares
-
Comunicación bidireccional entre AutoCAD Electrical y Rockwell Automation, así como la Unidad de Schneider Electric.
Las siguientes características de AutoCAD Electrical le permiten crear dibujos de diseño inteligente:
-
Comunicación y control de la visualización de componentes en el diagrama, el diseño y los informes.
-
Creación interactiva de planos de diseño según diagramas de proyecto.
-
Agregar elementos estructurales, conductos y rieles de montaje al proyecto
-
Agregar y controlar números de artículos para componentes
-
Verificación de integridad del proyecto
-
Navegación de referencia cruzada entre partes de visualización de componentes
-
Posibilidad de aplicar datos de ensamblaje al dibujo.
Toda la información sobre los terminales del proyecto se transfiere al "Editor de bloque de terminales", que proporciona las siguientes características:
-
Agregar terminales redundantes, puentes internos y externos, accesorios
-
Generación de visualización de bloques de terminales en forma gráfica o tabular.
-
Crear terminales de varios niveles
Según el proyecto o los planos individuales, se generan automáticamente varios informes, como una lista de elementos, tablas de conexión, cableado externo, señales de PLC y otros documentos. Para obtener los formatos de informe requeridos, hay:
-
Posibilidad de personalizar informes de usuarios, generación de informes de acuerdo con GOST
-
Ordenar y filtrar campos
-
Configurar la visualización de un informe en una hoja de un dibujo esquemático o de diseño
-
Se admite la transición bidireccional de la visualización de la hoja a la del informe.
-
ASCII, Microsoft Excel, Microsoft Access, CSV y XML son compatibles para guardar informes en archivos externos.
En el proceso de diseño, se realiza un monitoreo en tiempo real y se muestran mensajes de error. Objetos y herramientas de control:
-
UGO para componentes
-
Duplicación de designación de número de componente, terminal, cable o núcleo
-
Falta o vuelve a marcar el número de cable
-
Cables colgantes
-
Números de parte no asignados
-
Componentes "secundarios" para los que no se asigna un componente "principal"
-
Contactos inválidos
-
Asignación del número de posición del componente en el gabinete, etc.
Para obtener un modelo tridimensional del producto, hay una conexión con Autodesk Inventor Professional. Se sugiere el siguiente procedimiento para compartir AutoCAD Electrical y Autodesk Inventor Professional:
-
Cree circuitos en AutoCAD Electrical y guarde los datos del proyecto en formato XML
-
Lea los diagramas de circuito y el enrutamiento de cableado automático en Autodesk Inventor Professional para obtener longitudes y diámetros de cable
-
Arnés Dibujo Generación
-
Corrección de esquemas según datos de un modelo 3D
Ver también en electro-es.tomathouse.com
:


















